
03
Dormitorios
Espacio para compartir y crecer
Una tipología amplia y luminosa, con estancias versátiles y una terraza protagonista. Ideal para quienes buscan confort, privacidad y zonas comunes generosas.
2 Baños1 Plaza de garaje1 Trastero


Cuadro de
superficies
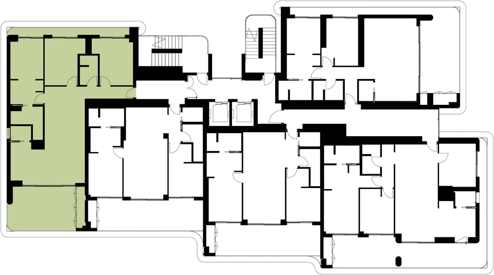
Viviendas Funcionales
La Torre Miller también dispone de viviendas de 3 dormitorios. La puerta A situada en las 10 plantas y la puerta D' situada de la planta 7 a la 10.
Selecciona la puerta de la vivienda:
Plantas 1ª a 10ª
Superficie útil interior · 87.46 m²
Superficie construida · 105.80 m²
Superficie de terraza · 29.87 m²


¿Te gustaría recibir más
información?
Para cualquier duda nuestro equipo estará encantado de ayudarte. No dude en escribirnos y te responderemos lo más pronto posible. Visita nuestro apartado contacto.
Contacto
Viviendas de
EXPLORAR